M&K建築設計

コンセプト作った物設計のながれ会社概要問い合わせ

ご相談

ご提案

設計

工事

点検

サイトマップ     WORKS  >  東山・小町の里Ⅱ

        東山・小町の里Ⅱ

ご提案

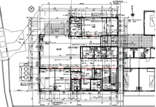
 下関市の田園地域のグループホームです。

 隣に東山・小町の里Ⅰがあり、その景観に添った柔らかいイメージのファサードとしました。
 個室から居間を経由して玄関に出る動線を作りその入所者を見守れる位置に事務室を配置しています。




TOP

About Us   |   Contact

〒750-0014 山口県下関市岬之町4-6 Aビル303
TEL : 083-250-9831  FAX : 083-250-9832
Copyright © Make and Keep Architects All Rights Reserved 2016