M&K建築設計

コンセプト作った物設計のながれ会社概要問い合わせ

ご相談

ご提案

設計

工事

点検

サイトマップ     WORKS  >  YH SPACE

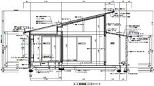
            YH SPACE

YH SPACE

 Clayさん内外装デザイン・プランを、藤川工務店さんが詳細設計を行ったコラボ設計です。

下関市の東行庵付近のアジア料理のお店です。
料理だけでなく観光自転車の貸し出しなど多彩な顔をしている地域を上手にPRできるお店だと思います。
料理の写真は私イチオシの鶏のパリパリ揚げ タイ風ベースです。




TOP

About Us   |   Contact

〒750-0014 山口県下関市岬之町4-6 Aビル303
TEL : 083-250-9831  FAX : 083-250-9832
Copyright © Make and Keep Architects All Rights Reserved 2016