M&K建築設計

コンセプト作った物設計のながれ会社概要問い合わせ

ご相談

ご提案

設計

工事

点検

サイトマップ     WORKS  >  小野建株式会社 山口営業所

        小野建株式会社
           山口営業所

小野建株式会社 山口営業所

 小野建株式会社 様は、鉄鋼・建材を日本中に流通させるシェアNo.1の鉄鋼・建材専門商社で、国内はもとより輸入鋼材の取り扱い、鉄鋼商品の加工、工事請負まで、幅広い品揃えを重視するビジネススタイルで全国の物流センターを活用し短納期化を実現する物流システムを構築されている企業です。
 この度、山口県全域と小倉支店・広島支店との物流の連携を強化することを目的とし、同社の山口営業所を、大型物流センターとして山口市鋳銭司の産業団地に全面移転されました。

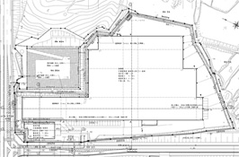
 山口営業所の敷地面積は約1万7300㎡、建屋の延べ床面積は約1万280㎡
(倉庫棟 約9780㎡ 事務所棟 約490㎡ その他 約10㎡)
 基本設計ではこの敷地をいかに有効に活用するかの検証を何度も行いました。鍵型の敷地に倉庫有効面積を限界までレイアウト出来るよう検証し、小野建株式会社の方にエラーチェックを依頼し、外郭ラインが出来たところで、続いて機器類の仮レイアウトを行いました。小野建株式会社のご担当の方にはお忙しい中、何度もチェックをして頂きました。
 倉庫棟は各鋼材部門倉庫エリアと休憩エリアに分類されており、大型車搬入の車両通路、その通路を介して歩道確保した1動線とし、事務所棟も同じく執務室、休憩・会議、更衣室それぞれ通路を介して1動線となるようプランニングいたしました。




TOP

About Us   |   Contact

〒750-0014 山口県下関市岬之町4-6 Aビル303
TEL : 083-250-9831  FAX : 083-250-9832
Copyright © Make and Keep Architects All Rights Reserved 2016