M&K建築設計

コンセプト作った物設計のながれ会社概要問い合わせ

ご相談

ご提案

設計

工事

点検

サイトマップ     WORKS  >  セントラルキッチントック

 セントラルキッチントック

セントラルキッチントック

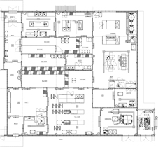
 下関市の王喜本町に株式会社トック様が2000食クラスの配食センターを開業されました。

 この施設は半分が配食センター、残り半分が事務所という施設で、食の衛生管理の面から、動線を分離しながらアプローチが容易な施設という機能が要求され、配食センター中央付近から2動線にて各作業室にアプローチできる計画となっています。




TOP

About Us   |   Contact

〒750-0014 山口県下関市岬之町4-6 Aビル303
TEL : 083-250-9831  FAX : 083-250-9832
Copyright © Make and Keep Architects All Rights Reserved 2016